Item.Wiki
--
Catalog
:
Properties
:
Log in
:
Register
Root
Construction and repair
Heating and ventilation
Heating radiators
Bimetal Royal Thermo PianoForte 500 Noir Sable H Black - 6 sections
Edit
History of changes
Delete item
Design:
Wall-mounted
Description:
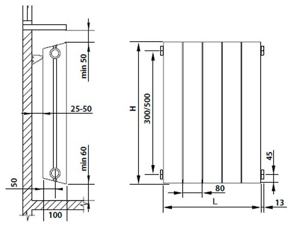
Material: bimetal, construction: wall-mounted, spacing: 500 mm, thickness: 100 mm, type: sectional
Connection:
Lateral
Type:
Sectional
Thickness:
100 mm
Detailed equipment:
Radiator
Material:
Bimetal
Maximum operating temperature:
110 °С
Max working pressure:
25 bar
Connection diameter:
1 inch
Crimping pressure:
37.5 bar
Center distance:
500 mm
Full bimetal radiator:
There is
Width of one section:
80 mm